ID CP2092037

Clădire de birouri S+P+4E, Splaiul Tudor Vladimirescu nr. 25, Timișoara

Această proprietate nu mai este activă,
te invităm să vizualizezi proprietăți similare

ID CP2092037

967,348 €

Spațiu de birouri de vânzare
Semicentral, Timisoara
1,068 mp
2008

Clădire de birouri S+P+4E, Splaiul Tudor Vladimirescu nr. 25, Timișoara

Clădire de birouri S+P+4E (S+P+3+Er), pe Splaiul Tudor Vladimirescu nr. 25, din Timișoara

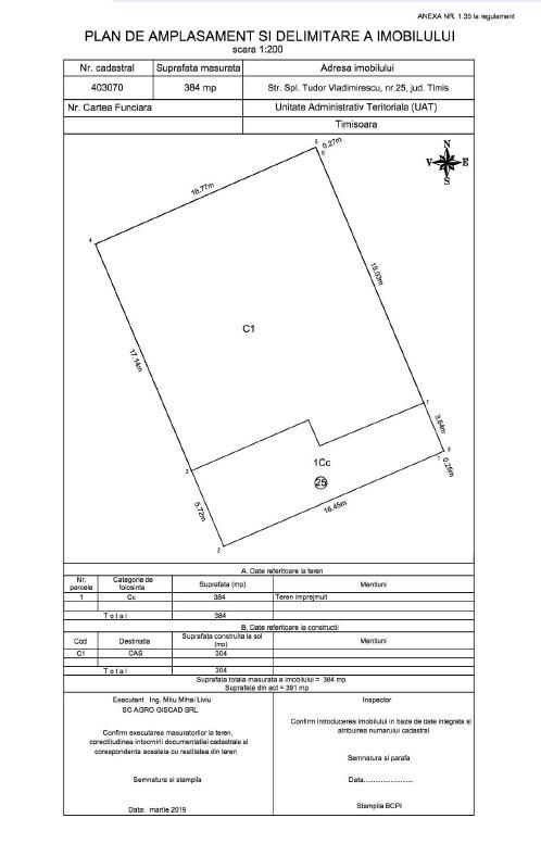
Proprietatea este amplasată în Municipiul Timișoara, Jud. Timiș, într-o zonă semi-centrală a localității. Accesul este facil și se realizează de pe Splaiul Tudor Vladimirescu. Vecinătățile imediate sunt proprietati rezidențiale, Gara Timișoara Nord, Piața Iosefin, dar și spații administrativ-comerciale (sedii de bănci, spații comerciale, reprezentanțe firme etc.)

Amplasamentul dispune de următoarele utilități: energie electrică, apă, canalizare, gaz.

Construcția edificată pe teren are următoarele caracteristici:

Suprafață construită la sol / amprentă: 304 mp. Suprafață desfășurată: 1.257 mp / Suprafață utilă: 1.068 mp. Suprafață teren: 391 mp (384 mp măsurată)

Data PIF: 2008

Descriere construcție: construcție cu regim de înălțime S+P+4E (S+P+3+Er), cu parcare la subsol, birouri la parter și etajele 1-3 de tip open-space, apartamente și o sală de conferințe la ultimul etaj. Clădirea beneficiază și de lift cu capacitatea de 8 persoane.

Clădirea are următoarele elemente constructive:

- Structura – fundații din beton continue sub ziduri

- Suprastructura – beton, cărămidă și grinzi metalice

- Închideri și compartimentări – placi de gips carton

- Planseul – din beton cu tavan fals casetat

- Acoperiș – de tip terasă

- Finisaje – zugrăveli simple

- Pardoseli – gresie, mochetă și beton (etajele 1–3 nu au montată pardoseala)

- Tâmplăria interioară – uși din lemn

- Tâmplăria exterioară – PVC si aluminiu cu sticlă termopan

Citește mai mult

  • Tip imobil
    Clădire birouri
  • Etaj
    Parter, 1, 2, 3, 4
  • Clasă birouri
    B
  • Suprafață construită
    1,257 mp
  • Număr terase
    1
  • Suprafață utilă
    1,068 mp
  • Disponibilitate
    Imediat
  • Suprafață totală birouri
    1,257 mp
  • Compartimentare spațiu
    Open space
  • An construcție
    2008
  • Construcție nouă
    Da
  • Număr etaje clădire
    3
  • Număr etaje retrase
    1
  • Număr subsoluri
    1

Facilități

Acces securizat parcare
Centrală termică
Ferestre care se deschid
Garaj subteran
Gresie
Internet
Recepție
Sistem de ventilație
Stație de autobuz în apropiere
Telefon
Vedere spre oraș
Necesare:

Site-ul nu poate funcționa corect fără aceste cookie-uri. Vezi cookie-urile

Statistică:

Strângem statistici anonime despre voi, vizitatorii unici, pentru a vă îmbunătăți experiența dumneavoastră. Vezi cookie-urile

Marketing:

Pentru a ne promova mai eficient serviciile noastre, folosim cookies pentru a vă identifica și a vă oferi proprietăți și servicii personalizate. Vezi cookie-urile

Acest site folosește cookies, află detalii. Alege ce tipuri de cookies dorești să permitem: