ID CP1671500

Teren intravilan 62.265 mp PUZ zona Pallady IKEA str. Balta Albina

ID CP1671500

13,386,975 €

Teren de 62,265 mp de vânzare
Theodor Pallady, Bucuresti
62,265 mp

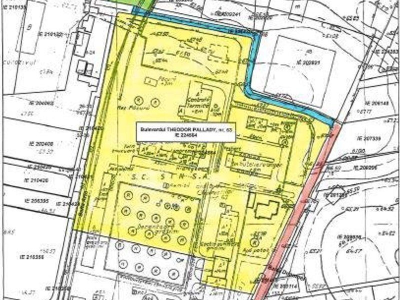
Total suprafață teren în proprietate este de 62.265 mp, format din:

Teren intravilan 45.751 mp cu PUZ de rezidential si CU pentru Construire în zona Theodor Pallady lângă IKEA str. Balta Albina 11, la care se adaugă Parcela din spate și drumuri de acces 16.514 mp.

Toate documentele de proprietate sunt disponibile: Extrase CF, documente achiziție, PUZ,

Certificat de Urbanism pentru construire, etc.

Total suprafață teren în proprietate 62.265 mp format din:

Teren intravilan 45.751 mp cu PUZ de rezidential zona Theodor Pallady lângă IKEA str. Balta Albina 11 + Parcela din spate și drumuri de acces 16.514 mp.

Toate documentele de proprietate disponibile extrase CF, Certificat de Urbanism pentru construire, PUZ, etc.

Citește mai mult

  • Tip teren
    Construcții
  • Suprafață teren
    62,265 mp
  • Front stradal
    180.0 m
  • Număr fronturi stradale
    2
  • Deschidere la
    Șosea
  • Distanța față de utilități
    1.0 m
  • Grad de comasare (%)
    100.0
  • Lățime drum acces
    8.0 m
  • Clasificare
    Intravilan
  • Disponibilitate
    Imediat
  • PUZ Aprobat
    Da
  • Certificat de urbanism
    Da

Facilități

Acces auto
Apă
Canalizare
Construcție demolabilă
Curent
Gaz
Iluminat stradal
La șosea
Mijloace de transport în comun
Oportunitate de investiții
Parcelabil
Străzi asfaltate
Teren împrejmuit
Utilități în zonă
Scurtu Dinu Valerian - Reale Connections
Scurtu Dinu Valerian
Administrator

0725307010


Solicită chiar acum o vizionare
Telefon
Sună acum Solicită vizionare
Necesare:

Site-ul nu poate funcționa corect fără aceste cookie-uri. Vezi cookie-urile

Statistică:

Strângem statistici anonime despre voi, vizitatorii unici, pentru a vă îmbunătăți experiența dumneavoastră. Vezi cookie-urile

Marketing:

Pentru a ne promova mai eficient serviciile noastre, folosim cookies pentru a vă identifica și a vă oferi proprietăți și servicii personalizate. Vezi cookie-urile

Acest site folosește cookies, află detalii. Alege ce tipuri de cookies dorești să permitem: